1015 Venice Blvd
Los Angeles, CA 90015
PERMITS HAVE BEEN ISSUED AND PAID FOR, allowing a developer to begin construction on Day One.
Sales Price $6,495,000
Beds
0
Baths
0
Home Size
Sq. Ft.
Lot Size
13061 Sq. Ft.
PERMITS HAVE BEEN ISSUED AND PAID FOR, allowing a developer to begin construction on Day One.
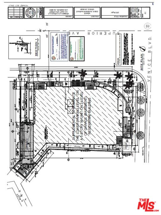
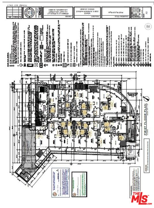
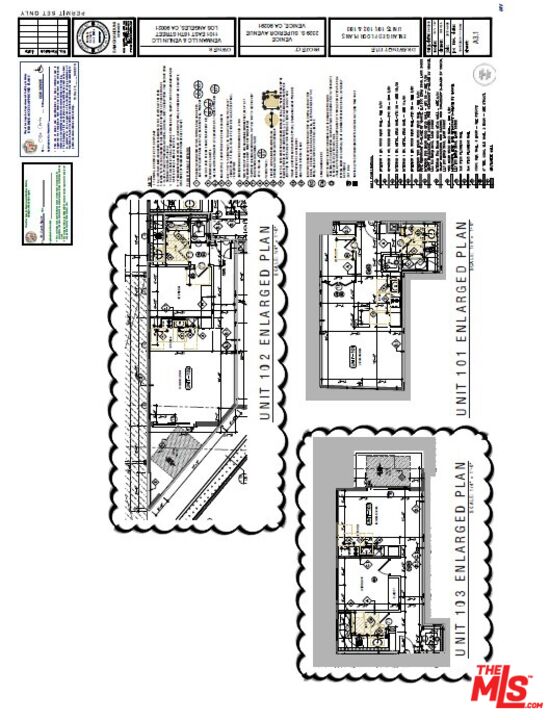
The project is engineered for no redesign cycles, no tenant relocations a true shovel-ready development. Approved plans call for a contemporary five-story, 56-unit multi family community elevated above one level of subterranean parking. Unit Mix Includes: *15 Singles 389-422 SF*1 ELI Single 417 SF*33 One-Bedrooms 541-664 SF*5 LI One-Bedrooms 526-549 SF*1 One-Bedroom + Den 549 SF*1 LI One-Bedroom + Den 549 SF The offering is priced at an attractive $529 per land SF and $123,125 per buildable unit, which includes approximately $450,000 IN PAID ARCHITECTURAL, STRUCTURAL AND MEP PLANS AND CITY PERMIT COSTS. With 50 market-rate units and six affordable set-asides, this is a rare chance to step directly into a high-value Westside development without entitlement uncertainty.
This home located at 1015 Venice Blvd is currently active and has been available on pardeeproperties.com for 75 days. This property is listed at $6,495,000. It has 0 beds and 0 bathrooms. 1015 Venice Blvd is in the Venice community of Los Angeles County.
Quick Facts
- 75 days on market
- Total parking spaces Car
- Community | Venice
- MLS# | 25623853
The multiple listings information is provided by The MLS™/CLAW from a copyrighted compilation of listings. The compilation of listings and each individual listing are ©2026 The MLS™/CLAW. All Rights Reserved. The information provided is for consumers' personal, non-commercial use and may not be used for any purpose other than to identify prospective properties consumers may be interested in purchasing. All properties are subject to prior sale or withdrawal. All information provided is deemed reliable but is not guaranteed accurate and should be independently verified.
Similar Listings
1155 S Grand Ave #1103
Los Angeles, CA 90015
Bed
1
Bath
2
Sq Ft.
1120
Price
$629,000
1516 W 11th Pl
Los Angeles, CA 90015
Bed
9
Bath
5
Sq Ft.
3700
Price
$959,000
877 Francisco St #1112
Los Angeles, CA 90015
Bed
1
Bath
2
Sq Ft.
909
Price
$705,000














